Titanic CAD-Plans
in
co-operation with Titanic researcher Bruce Beveridge
For over
30 years I have been interested in the history of the RMS Titanic. I
have always had the desire to create a highly detailed plan of that fantastic
vessel for modellers.
After many years of
studying original plans, drawings and photos of Titanic and her sisters Olympic
and Britannic in co-operation with the Titanic researcher Bruce
Beveridge there has been an extensive plan created, with which any skilled
modeller is capable of constructing his own model of the ill-fated liner Titanic
and bringing her back to life.
The following picture,
taken from a section of the plan, shows the profile of this unique liner.

(C) Copyright 2012 Robert
Hahn-All Rights Reserved
All drawings were
produced with a CAD program, so that the scale and the fitting of parts is
virtually guaranteed. The three-dimensional representation of the hull shows
the precise orientation of the different hull-lines, which were reproduced from
the original plans, and as a result of that, the construction of the bulkheads
which create the
shape of the models hull.
(C) Copyright 2012 Robert
Hahn-All Rights Reserved
Every small detail
(lamps, ladders, windows,...) were considered and represented in the plans
correctly. I have always paid attention to the few minor differences between Titanic,
Olympic, and Britannic which was taken into consideration.
|
|
|
|
Details of starboard Sideprofile |
|
(C) Copyright 2012 Robert Hahn-All Rights
Reserved
|
|
|
|
Details at Officer Quarter Deckhouse |
|
(C) Copyright 2012 Robert Hahn-All Rights
Reserved
|
|
|
|
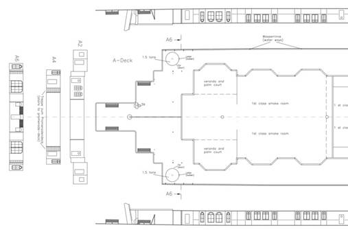
View of Stern Section |
Details at A-Deck astern |
(C) Copyright 2012 Robert Hahn-All Rights
Reserved
|
|
|
|
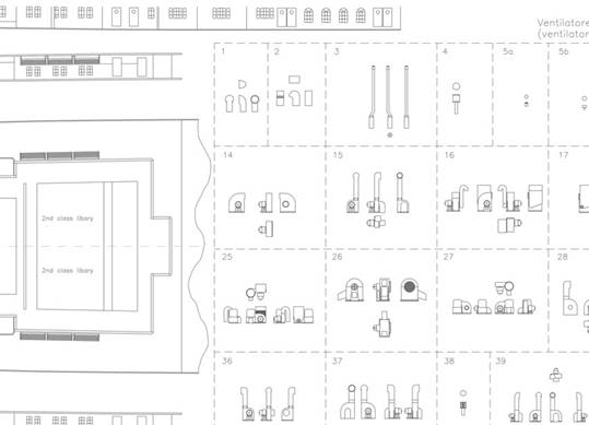
Ventilator Details |
Poop-Deck, Docking Bridge and Welin Davits |
(C) Copyright 2012 Robert Hahn-All Rights
Reserved
The plan has been
drafted in a standard scale of 1:144. In that scale the length of the model
will be 187 cm (6' 1.62"), at that size the model should be quite easy to
handle and large enough to show all the small details you would want to add to it.
For those, who are interested in letting their Titanic swim, the weight of the
finished ship should be approximately 16-17 kg (35-38 lbs.) finished. I
also offer the plans in the scales 1:192, 1:350 and 1:100. Other scales are
possible, ask me. The scale 1:350 is for those who want to super detail their
MINICRAFT Titanic kit. In this scale the frame set is not shown but the plan
includes many important details in double size.
You can decide between
two different versions of the plan, which differ in their details.
In the first Version "Lite" the single sheet portrays the side
and the top of the vessel along with a front and rear-view. It is not feasible to build the Titanic solely with
that version because it lacks any important views and many detailed
views are missing making this a good set for use as a wall decoration. These
missing views however and the very important frame are detailed in the 3
additional sheets of the "Standard" version. In that version you have
all relevant deck views, all the details and the complete frame set.
To get an impression of
what is waiting for you, click on the version-buttons below. Please take into
account that the quality of the pictures are not nearly as good as what the
final plans will be because of printing them, scanning them, and image
compression. The finished plans will be plotted out to maximise quality and
satisfy heavy demands.
The plans at 1:144 have
a finished size of 2.5 m x 0.9 m each, in 1:100 their size is 3.6 m x 0.9
m.
For all you English speaking folks, don't worry, the plans have explanation
in both German and English.
Order the plans right here: